3601 - 1277 Hornby Street

Downtown VW, Vancouver West
3601 - 1277 Hornby Street, Downtown VW, Vancouver West

Penthouse

2 Bedrooms

3 Bathrooms

Size: 1,552 sqft

Mnt Fee: $1,572.63

$4,899,900

About this Penthouse in Downtown VW

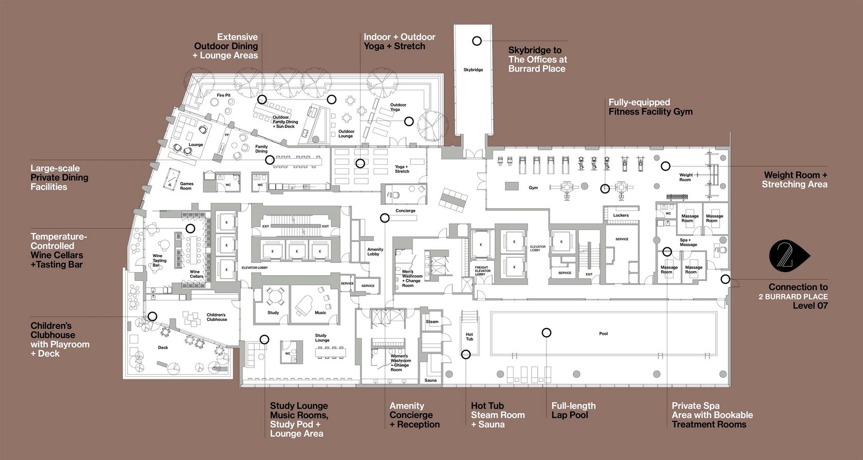
Euroluxe Penthouse interiors inspired by the most design-forward and cosmopolitan cities of the world, privileged star luminary & concierge services with 30,000sf of private Club One amenities await you at 2 Burrard Place. Enjoy 180º water, mountain, city views & beyond from this exceptional penthouse home. Equipped with A/C, 10'ceilings, wide plank hardwood floors, luxurious MITON Italian kitchen with GAGGENAU Appliances & integrated KICO Italian wardrobe system. Air Dresser. Spa-inspired baths are clad, floor to ceiling, in stone w/heated floors & CIELO Italian bath fixtures. Fully equipped outdoor kitchen. EV-ready 2 car enclosed garage with storeroom. 1 dedicated bike locker. WWW.2BURRARDPLACE.CA

Listed by Magnum Projects Ltd..

Vancouver, Fraser Valley and Chilliwack MLS® Reciprocity Brought to you by your friendly REALTORS® through the MLS® System, courtesy of Lynn Le Drew for your convenience.
Disclaimer: This representation is based in whole or in part on data generated by the Chilliwack & District Real Estate Board, Fraser Valley Real Estate Board or Real Estate Board of Greater Vancouver which assumes no responsibility for its accuracy.

More Details

  • MLS®R2866191
  • Bedrooms2
  • Bathrooms3
  • TypePenthouse
  • BuildingTwo Burrard Place
  • Size1,552 sqft
  • Full Baths2
  • Half Baths1
  • Taxes$0
  • Strata$1,572.63
  • ParkingGarage Double, Underground, Guest (2)
  • View180º water, mountain, city
  • BasementNone
  • Storeys36 storeys
  • Year Built2026
  • StylePenthouse

Want to know more?

Get in touch to set up a viewing or receive an info package

Contact Info >












Are you currently working with a Realtor®?

By subscribing, you hereby opt in to receive communications from Nest Presales regarding new development information and features. You may unsubscribe at any time by following the instructions in the communication received.

Sold Out

This listing is inside of Two Burrard Place.

Built by Reliance


Downtown VW, Vancouver West

9 other listings in the building

Two Burrard Place

The Neighbourhood and Accessibility of 3601 - 1277 Hornby Street, Downtown VW, Vancouver West

Address on Google Mapsmap marker icon
Map View
Street View

More about Downtown VW, Vancouver West

Downtown Vancouver West is the city’s vibrant urban core, where modern living meets unmatched convenience. Sleek high-rise condos rise above bustling streets lined with shops, restaurants, and entertainment venues, offering residents a true live-work-play lifestyle.

Latitude: 49.278146

Longitude: -123.1291217


Share Location
Want more info?