3503 - 1277 Hornby Street

Downtown VW, Vancouver West
3503 - 1277 Hornby Street, Downtown VW, Vancouver West

Penthouse

2 Bedrooms

2 Bathrooms

Size: 1,109 sqft

Mnt Fee: $1,124.86

$3,089,900

About this Penthouse in Downtown VW

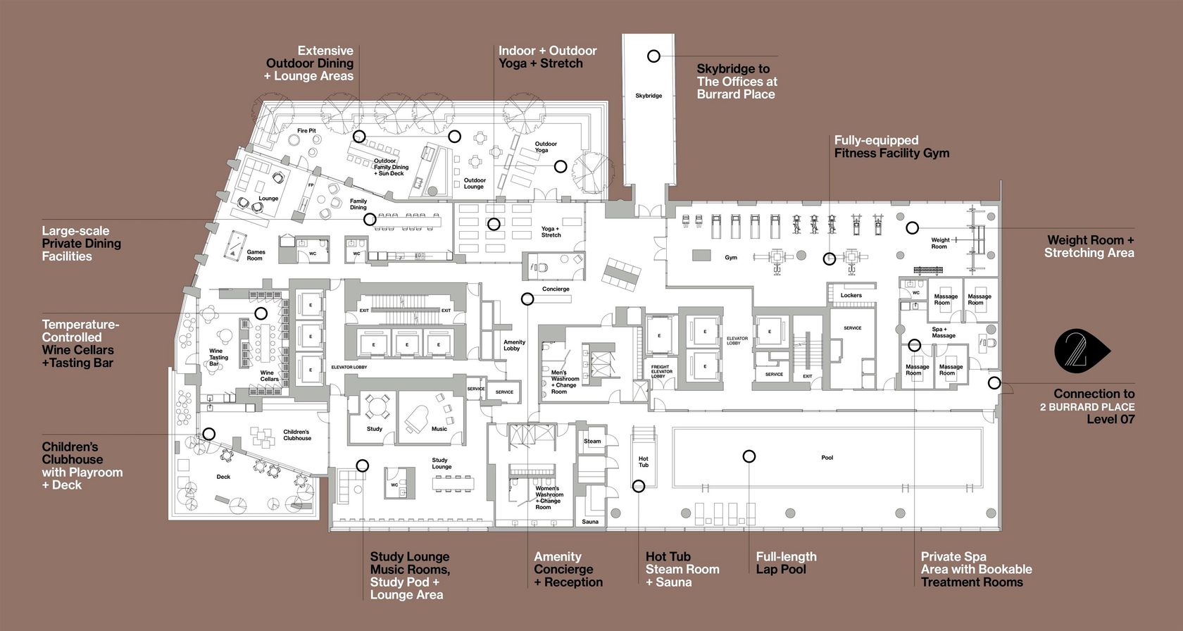
Discover urban luxury living at 2 Burrard Place's Euroluxe Sub-Penthouse. Privileged star luminary & concierge services await, along with 30,000sf of private Club One amenities. This 35th-floor sub-PH offers stunning city/mountain views/False Creek & English Bay vistas from the balcony. Features include A/C, 9'8" ceilings, wide plank hardwood floors, MITON Italian kitchen with GAGGENAU Appliances, and CIELO Italian bath fixtures. 2 EV-ready parking stalls & 1 bike locker. Completion estimated for late 2026.

Listed by Magnum Projects Ltd..

Vancouver, Fraser Valley and Chilliwack MLS® Reciprocity Brought to you by your friendly REALTORS® through the MLS® System, courtesy of Lynn Le Drew for your convenience.
Disclaimer: This representation is based in whole or in part on data generated by the Chilliwack & District Real Estate Board, Fraser Valley Real Estate Board or Real Estate Board of Greater Vancouver which assumes no responsibility for its accuracy.

More Details

  • MLS®R2864694
  • Bedrooms2
  • Bathrooms2
  • TypePenthouse
  • BuildingTwo Burrard Place
  • Size1,109 sqft
  • Full Baths2
  • Half Baths0
  • Taxes$0
  • Strata$1,124.86
  • ParkingUnderground, Guest (2)
  • ViewCity, mountain
  • BasementNone
  • Storeys36 storeys
  • Year Built2026
  • StylePenthouse

Want to know more?

Get in touch to set up a viewing or receive an info package

Contact Info >












Are you currently working with a Realtor®?

By subscribing, you hereby opt in to receive communications from Nest Presales regarding new development information and features. You may unsubscribe at any time by following the instructions in the communication received.

Sold Out

This listing is inside of Two Burrard Place.

Built by Reliance


Downtown VW, Vancouver West

9 other listings in the building

Two Burrard Place

The Neighbourhood and Accessibility of 3503 - 1277 Hornby Street, Downtown VW, Vancouver West

Address on Google Mapsmap marker icon
Map View
Street View

More about Downtown VW, Vancouver West

Downtown Vancouver West is the city’s vibrant urban core, where modern living meets unmatched convenience. Sleek high-rise condos rise above bustling streets lined with shops, restaurants, and entertainment venues, offering residents a true live-work-play lifestyle.

Latitude: 49.278146

Longitude: -123.1291217


Share Location
Want more info?