
Condo
2 Bedrooms
2 Bathrooms
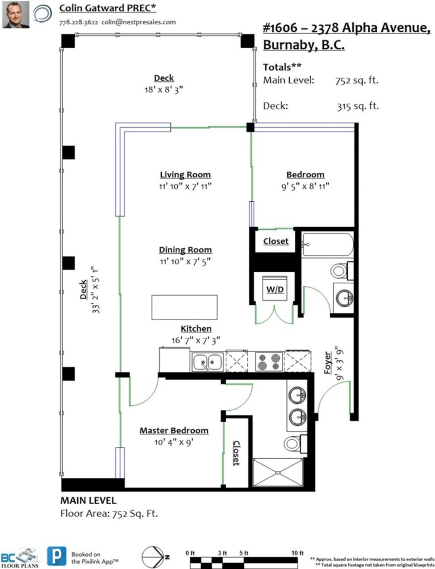
Size: 752 sqft
Mnt Fee: $326.80
$859,900
About this Condo in Brentwood Park
Brand new without the GST! This SW corner home offers 1067 total sqft indoor/outdoor living at high end Milano bldg, by award-winning developer Solterra, with far reaching views & 315 sqft wraparound balcony. Featuring AC, high-end cabinetry with integrated full size appliances, island with built-in dining table, laminate floors thru-out, & sliding frosted glass door on the 2nd bedroom, this home sets itself apart from the others. This bldg is architecturally distinct & the hotel-style amenities include a huge outdoor terrace with BBQ, Jacuzzi & steam room, party room with full kitchen, & a guest suite. The building also offers EV charging. Completely separate car parking space beside the entrance door, as well as a storage locker.
More Details
- MLS®R2324724
- Bedrooms2
- Bathrooms2
- TypeCondo
- BuildingMilano
- Size752 sqft
- Full Baths2
- Half Baths0
- Strata$326.80
- ViewSw to metrotown
- Storeys1
- Year Built2018
- StyleCorner Unit,Upper Unit
By subscribing, you hereby opt in to receive communications from Nest Presales regarding new development information and features. You may unsubscribe at any time by following the instructions in the communication received.
This listing is inside of Milano.
Built by Solterra
Brentwood Park, Burnaby North
5 other listings in the building
The Neighbourhood and Accessibility of 1606 - 2378 Alpha Avenue, Brentwood Park, Burnaby North
More about Brentwood Park, Burnaby North
Brentwood Park is located in north-central Burnaby, west of Willingdon Avenue and south of Capitol Hill. The area is defined by modern condo towers near Brentwood Town Centre, with quieter streets of houses nearby.